140 Diggers Rest-Coimadai Road, Diggers Rest
High-Exposure Commercial/Industrial Land - Flexible Lot Sizes between 1000 m2 - 4500 m2.




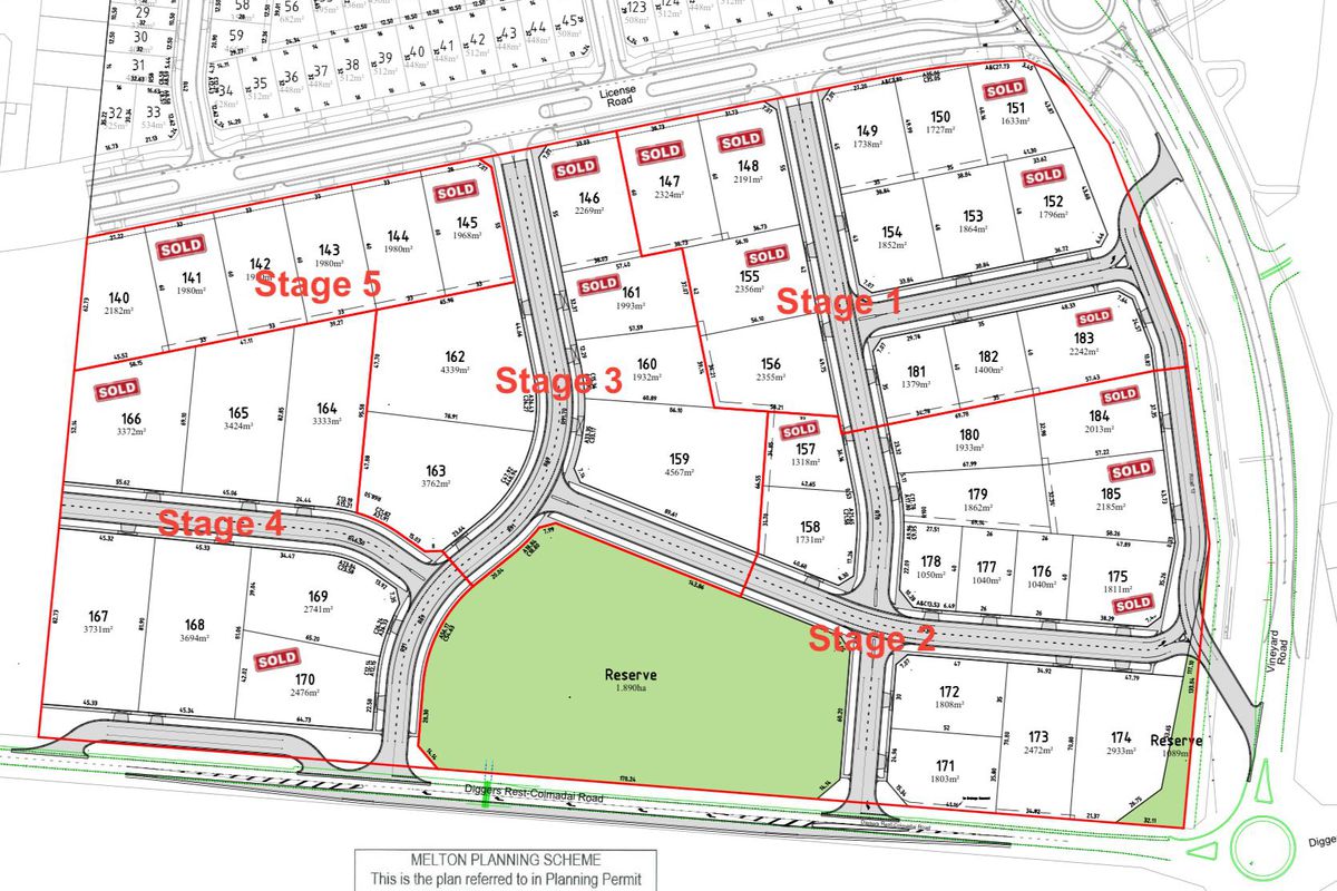
Description
Prime Commercial Zoned Land (CZ2) – Growth Corridor of Diggers Rest
An outstanding opportunity to secure Commercial Zone 2 (CZ2) land within a strategically planned and staged development in the heart of Diggers Rest.
Positioned amongst expanding residential estates and future community infrastructure, this site offers exceptional potential for a variety of commercial and mixed-use developments (STCA).
Key Features:
-Commercial Zone 2 (CZ2)
-Staged development with flexible lot options
-Ideal for retail, medical, office or service-based uses (STCA)
-Strong future exposure and accessibility
-Adjoining public reserve enhancing amenity
-Located in a rapidly growing western growth corridor
With limited supply of commercial land in the area, this property presents an ideal opportunity for developers, investors, and owner-occupiers seeking long-term growth.
Don’t miss out on this rare opportunity to secure your position in Digger Rest's next major business and logistics hub.
For further information, contact Team One Real Estate at 0430 358 353
Your email address will not be published. Required fields are marked *